
Titelbild: Foto des Modells des «Modulor-Raums» von Thilo Hilpert in der Ausstellung «Modern Human – Modulor space origin» im BHROX bauhaus reuse, © Michael Setzpfandt für zukunftsgeraeusche, 2023
Ausstellung
Modern Human – Modulor space origin
Die Ausstellung «Modern Human – Modulor space origin» ist der zweite Teil des Projekts «Modern Human – revisited / reused». Die Ausstellung zeigt den 1:1 wiederverwendeten bzw. wiedererrichteten sogenannten «Modulor-Raum» (vgl. Abb. 1) vor dem Hintergrund seiner Entstehung und im Kontext der Ausstellung «Le Corbusier.Atelier der Ideen.1887-1987» von Thilo Hilpert, die in der Halle 8 der Messe Frankfurt am Main im Jahr 1987 stattfand.
Das Projekt «Modern Human – revisited / reused» begann mit dem ersten Teil «Modern Human – Modulor space reuse», der die Wiederentdeckung und Rekonstruktion des Modulor-Raums aus den seither eingelagerten Einzelteilen und die Installation im BHROX bauhaus reuse zum Gegenstand hatte (vgl. Abb. 2-3). Das Projekt ist ein Bestandteil des BHROX-Themenschwerpunkts «Moderne im Kontext», wobei der erste Projekt-Teil ein Programm-Beitrag zur Triennale der Moderne 2022 (TDM2022) am BHROX war; gefördert mit Mittel der Stiftung Deutsche Klassenlotterie Berlin. Die Rekonstruktion und Installation erfolgte in einem mehrwöchigen Workshop, einschließlich der weiteren Aufbereitung und Rekonstruktionen von zugehörigen und noch erhaltenen Bildtafeln, Möbeln und Modellen der Ausstellung in Frankfurt.
Die Ausstellung «Modern Human – Modulor space origin» ist zunächst als Preview im BHROX bauhaus reuse zu besichtigen, für eine Woche vom 31. August bis 06. September 2023; zuvor war auch der Aufbau-Prozess für das tägliche Publikum des BHROX zu besichtigen.
Bis zur jetzigen Preview diente der wiedererrichtete Modulor-Raum, seit der Installation zur TDM2022, als Raum-im-Raum für verschiedene Programm-Formate, wie Ausstellungen und Veranstaltungen. Im März 2024 folgt der dritte

Abb. 1: Foto der Installation des Modulor-Raums im BHROX bauhaus reuse, Ausstellung «Modern Human – Modulor space origin», © Michael Setzpfandt für zukunftsgeraeusche, 2023
Teil des Projekts mit einer erweiterten Installation und Kontextualisierung des Modulor-Raums und des modernen Menschen*.
Die Ausstellung «Le Corbusier.Atelier der Ideen.1887-1987» wurde von Prof. (em.) Dr. Thilo Hilpert konzipiert und 1987 in der Halle 8 der Messe Frankfurt realisiert. Wobei der große Umfang an Exponaten mit Studierenden des Fachbereichs Architektur der Fachhochschule Wiesbaden erbaut wurde und zahlreiche Mitwirkende, Partner*innen und Unterstützer*innen beteiligt waren (Hilpert, T., Le Corbusier.Atelier der Ideen.1887-1987, Christians & Reim, Hamburg, 1987, S. 3f).
Der Ort der damaligen Ausstellung war für die Macher*innen eine bewusste thematische und räumliche

Abb. 2-3: Fotos der Rekonstruktion des Modulor-Raums aus den wiederverwendeten Elementen, Workshop «Modern Human – Modulor space reuse» zur Triennale der Moderne 2022 im BHROX bauhaus reuse, © zukunftsgeraeusche, 2023

Abb. 2-3: Fotos der Rekonstruktion des Modulor-Raums aus den wiederverwendeten Elementen, Workshop «Modern Human – Modulor space reuse» zur Triennale der Moderne 2022 im BHROX bauhaus reuse, © zukunftsgeraeusche, 2023

Abb. 4: Luftbild der Messe Frankfurt (Messehalle 8; Gebäude in Bildmitte mit dunklem Dach), Thilo Hilpert bei der Begehung und Modell der Ausstellung vor der Realisierung in der leeren Messehalle (Hilpert, T., Le Corbusier.Atelier der Ideen.1887-1987, Christians & Reim, Hamburg,
1987, S. 11)
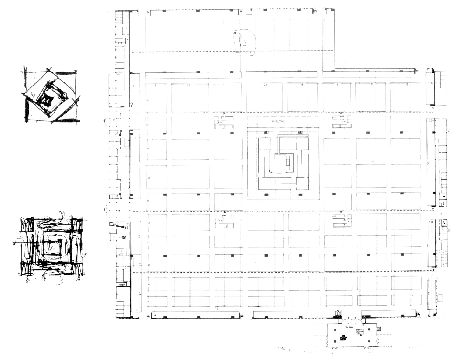
Herausforderung des Vorhabens, für ein einzigartiges, temporäres Museum (vgl. Abb. 4, 5, 6). Die Messehalle, damals wie heute, besitzt beeindruckende Dimensionen von 181 mal 181 Metern und einer Höhe von 11,75 Metern, mit einer Fläche von rund 30.000 Quadratmetern und einem Raster aus 32 innenliegenden Stützen mit Maßen von 191 x 116 Zentimetern sowie einer segmentierten Decke aus Oberlichtern bzw. Lichtbändern, die natürliches Licht einlassen (vgl. Abb. 7). Das Boden-Raster der Halle von zwei mal zwei Metern – nahe am Modulor-Maß – bildete einen der Ausgangspunkte für die Ausstellungsstruktur (ebd, S. 12).
Ebenso nahm die Ausstellung räumlich und strukturell Bezug zum Typus und Topos der Messe an sich, so wie der Aufbau einer Messe in die Systematik und Dimension eines Stadtgrundrisses vorstößt – zwar von temporärem Bestand – als eine Agglomeration aus Wegebeziehungen und Kommunikationswegen, Orten und Funktionen, mit Straßen, Parzellen, Bauten und Nutzungen, ohne wahrscheinlich bewusst die Disziplinen des Städtebaus zu berücksichtigen (ebd, S. 12f).
Der Bau der Ausstellungswände des temporären Museums wurde aus den alten, offenbar im Jahr 1986 ausgemusterten und dafür wiederverwendeten Messewänden errichtet; gebaut von den gleichen Messebauern, die ansonsten die üblichen Messebauten errichteten (ebd, S. 11).
Zu der Ausstellung erschien der dreisprachige Katalog – deutsch, englisch, französisch – «Le Corbusier.Atelier der Ideen.1887-1987» ebenso von Thilo Hilpert verfasst und herausgegeben von der Messe Frankfurt und dem Bund

Abb. 5: Dreisdimensionale Zeichnung des Ausstellungsaufbaus in der Halle 8 der Messe Frankfurt (ebd, S. 13)

Abb. 6: Collage – Dreidimensionale Darstellung des Zentrums der Ausstellungs, Foto von Thilo Hilpert vor dem Modell in der Messehalle, perspektivische Draufsicht der hauptsächlichen Ausstellungsbauten, Fotoserie zum Bau der Exponate (ebd, S. 157ff)
Deutscher Architekten, Bonn, erschienen im Christians & Reim Verlag, Hamburg, 1987 (vgl. Abb. 8). Der Katalog wurde beabsichtigt im gleichen Format wie die Edition «Oeuvre Complète de Le Corbusier» angelegt, auf 280 Seiten, plus 24 Seiten Anhang mit Firmenanzeigen, zum Teil mit Bezug auf den Inhalt der Ausstellung bzw. des Buches (vgl. Abb. 9); wobei letzteres eine Referenz zum Buch anlässlich des Pavillons L’Esprit Nouveau aus dem Jahr 1925 darstellt, das Le Corbusier mit am Bau des Pavillons beteiligten Firmen finanzierte (ebd, S. 5).
Der Katalog – in der jetzigen Ausstellung als Originalausgabe ausgestellt und digitalisiert auf einem Touchscreen zum Lesen zugänglich gemacht (vgl. Abb. 10) – umfasst vier Sektionen mit 18 Kapiteln, begonnen mit dem Kapitel «Der Ort» (S. 11), auf das im Obigen Bezug genommen wird. Wobei der Hauptteil des Katalogs aus zwei Sektionen besteht, die analog den Inhalten, sprich Räumen oder Kapiteln, der Ausstellung entsprechen:
Unter dem Titel «Ideen» sind zusammengefasst die Kapitel «Das Haus» (S. 16), «Die Utopie der Stadt» (S. 36), «Architektur im Kontext» (S. 50), «Modulor – das menschliche Maß» (S. 66), «Die Logik des Kreativen» (S. 88), «Architektur aus Licht» (S. 116), «Die Haut der Architektur» (S. 134) und «Die Nachricht der Hand» (S. 155).
Die zweite Haupt-Sektion verbindet unter dem Titel «Weg der Ideen» die Kapitel «Deutschland – Aktualitätenbuch» (S. 160), «1920-30 Die Sprache der Moderne» (S. 174), «1930-45 Die Organisation der Stadt» (S. 202),

Abb. 7: Grundriss der Messehalle 8 und Ausstellung, Handskizzen von Thilo Hilpert (ebd, S. 14)

Abb. 8: Titelblatt (innen) des Katalogs zur Ausstellung (ebd, S. 7)

Abb. 9: Anhang mit Firmenanzeigen – Werbeanzeige der Firma «Joh. Wachenfeld GmbH & CO. KG» mit Bezug zum Kapitel «Die Haut der Architektur» (ebd, Anhang)
«1945-60 Die Rückkehr zum Stein» (S. 222), «1960-65 Chandigarh – Bauplatz der Ideen» (S. 246) und «La boîte du miracle – Rue Nungesser et Coli, 1973» (S. 264).
Anschließend folgen die Kapitel «Im Atelier» (S. 266), «Notizen zu einem Interview» (S. 270) und ein «Nachwort: Architektur im Prozess» (S.274) sowie zum Abschluss der bereits genannte Anzeigenteil.

Abb. 10: Foto des digitalisiertes Katalogs, auf einem Touchscreen zum Lesen zugänglich gemacht © Michael Setzpfandt für zukunftsgeraeusche, 2023

Abb. 11: Abwicklung bzw. Schnittzeichnung der Ausstellung, mit Relation zu den Maßfiguren (ebd, S. 156)
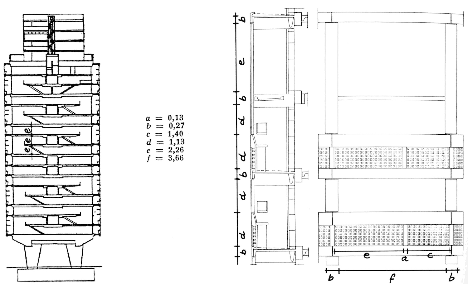
Die «Dramaturgie» der Räume der Ausstellung basierte auf den Elementar-Maßen bzw. Volumen (vgl. Abb. 11), anhand derer nach Hilpert folgende drei Elementar- bzw. Modul-Räume (vgl. Abb. 12) gestaffelt sind (ebd, S. 71-73):

Abb. 12: Darstellung der Skalierung der drei Elementar- bzw. Modul-Räume – (1) Kubus von 2,26 Metern, (2) Kubus von 3,66 Metern, (3) Maisonette in der Unité d’Habitation, (4) Kubus von 6,78 Metern (ebd, S. 80 und 81)
Zunächst ist dies der Kubus von 2,26 Metern (vgl. Abb. 13), die dem Modulor mit aufwärts gerichteten Arm sowie dem Einbau in Le Corbusiers Atelier in der Rue de Sèvers (vgl. Abb. 14) entsprechen. Darauf baut auf der (vgl. Abb. 15), somit das zweifache Scheitel-Maß des aufrecht stehenden ModulorKubus von 3,66 Meterns und entsprechend beispielsweise der Breite der Wohnungen in der Unité d’Habitation (vgl. Abb. 16). Zuletzt folgt der Kubus von 6,78 Metern – mit Referenz zu Le Corbusiers Entwurf für das Museum des Wissens mit unbegrenztem Wachstum oder «Spiralmuseum» (vgl. Abb. 17).

Abb. 13: Darstellung Kubus von 2,26 Metern, in Relation mit Modulor mit aufwärts gerichtetem Arm (ebd, S. 66)

Abb. 14: Grundriss und Perspektive des Einbaus in Le Corbusiers Atelier in der Rue de Sèvers (ebd, S. 77)

Abb. 15: Riss-Zeichnungen des Modulor-Raums, Kubus von 3,66 Metern in Relation mit Modulor mit aufwärts gerichtetem Arm (ebd, S. 67)

Abb. 16: Schnitte und Detail-Ansicht der Unité d’Habitation, mit Angaben der Modulor-Maße (ebd, S. 84)

Abb. 17: Entwurfsskizze für das Museum des Wissens mit unbegrenztem Wachstum oder «Spiralmuseum» (ebd, S. 102)

Abb. 18: Perspektiv-Schnitt des Modulor-Raums, Kubus von 3,66 Metern in Relation mit Modulor mit aufwärts gerichtetem Arm (ebd, S. 79)

Abb. 19: Foto des Modulor-Raums im BHROX bauhaus reuse – Fugen, die den modularen Aufbau erkennen lassen und Durchblicke den umgebenden Raum, © Michael Setzpfandt für zukunftsgeraeusche, 2023

Abb. 20: Foto des Modulor-Raums im BHROX bauhaus reuse – Die Lücke in der Brüstung der großen Außenwand-Öffnung, die das fehlende Podest hinterließ, ist durch einen Riegel am Boden geschlossen, © Michael Setzpfandt für zukunftsgeraeusche, 2023

Abb. 21: Foto des Modulor-Raums im BHROX bauhaus reuse – Die fehlende Schiebetüre wurde anhand der vorhandenen Wandaufnahme nachempfunden, © Michael Setzpfandt für zukunftsgeraeusche, 2023

Abb. 22: Foto des Modulor-Raums im BHROX bauhaus reuse – Im Inneren befindet sich die restaurierte Liege, © Michael Setzpfandt für zukunftsgeraeusche, 2023
Der Modulor-Raum, als Würfel von 3,66 Metern (vgl. Abb. 18), verkörpert die mittlere Skalierung und ist in der Ausstellung «Modern Human – Modulor space origin» in Originalgröße installiert. Jedoch ist dieser einbeschrieben in das Tragwerk des BHROX, wodurch zwischen den hochkant stehenden Wand-Elementen zusätzliche Fugen entstehen, die den modularen Aufbau erkennen lassen und weitere Durchblicke in den Modulor-Raum und den umgebenden Raum zulassen (vgl. Abb. 19). Zudem wurden zwei Seiten des Modulor-Raums aufgrund der räumlichen Ausrichtung gespiegelt, womit gleichsam Modularität, Symmetrie und Flexibilität des Raumprinzips deutlich werden.
Bei der Restaurierung wurde der authentische Zustand der Elemente weitestgehend erhalten und Ausbesserungen im Rahmen gehalten. Zwei nicht mehr vorhandene Bauteile wurden ergänzt. Das fehlende Podest auf dem Boden hinterließ eine Lücke in der Brüstung der großen Öffnung einer Außenwand, die durch einen Riegel am Boden geschlossen wurde (vgl. Abb. 20). Zudem wurde die Schiebetüre anhand der vorhandenen Wandaufnahme nachempfunden (vgl. Abb. 21).
Im Inneren des Modulor-Raums befindet sich als Möbel die restaurierte Liege (vgl. Abb. 22), die dem Modell aus dem Bad der Villa Savoye entspricht (vgl. Abb. 23).

Abb. 23: Historisches Foto des Bads der Villa Savoye mit gefliester Liege (ebd, S. 69)

Abb. 24 und 25: Fotos der schwarzen Kreide-Tafeln im BHROX bauhaus reuse – Die Tafeln zeigen die Relation des Modulors zu Leonardo da Vincis menschlichem Maß sowie Maßbezüge in Lebensgröße, © Michael Setzpfandt für zukunftsgeraeusche, 2023

Abb. 24 und 25: Fotos der schwarzen Kreide-Tafeln im BHROX bauhaus reuse – Die Tafeln zeigen die Relation des Modulors zu Leonardo da Vincis menschlichem Maß sowie Maßbezüge in Lebensgröße, © Michael Setzpfandt für zukunftsgeraeusche, 2023

Abb. 26: Historisches Foto der Tafel von vier mal vier Metern im Atelier Le Corbusiers (ebd, S. 70)

Abb. 27: Abbildung Maß-Figuren «Von Leonardo zu Le Corbusier» – (1) Modulor von 1,83 Metern, (2) Goldener Schnitt in Relation zu den Modulor-Maßen «Teilung des Dreiecks ergibt Maße der blauen Reihe des Modulors», (3) Goldener Schnitt in Relation zu den Modulor-Maßen «Teilung des Quadrats ergibt Maße der roten Reihe des Modulors», (4) «Matila Ghykas Netz harmonischer Körpermaße von 1931», (5) «Leonardos Zeichnung (um 1510) in den gleichen Maßstab gebracht – Querbezüge eröffnen sich.» (ebd, S. 74 und 75)
Die dem Modulor-Raum gegenüberstehenden schwarzen Kreide-Tafeln (vgl. Abb. 24 und 25) referenzieren die Tafel von vier mal vier Metern im Atelier Le Corbusiers, auf denen jedes Detail, ob Gebäudeentwurf oder Möbel, in 1:1 visualisiert wurde (vgl. Abb. 26). In der Ausstellung zeigen diese die Relation des Modulors zu Leonardo da Vincis menschlichem Maß sowie Maßbezüge zu dem Modulor-Raum in Lebensgröße (vgl. auch Abb. 27).

Abb. 28: Foto des restaurierten Ausstellungsmodells in 1:25 von Thilo Hilpert im BHROX bauhaus reuse, © Michael Setzpfandt für zukunftsgeraeusche, 2023

Abb. 29: Darstellung verschiedener maßlicher Körperpositionen des Modulors, diese entsprechen maßlich den Öffnungen des Modulor-Raums (ebd, S. 71)
Ein zentrales Exponat der heutigen Ausstellung ist zudem ein restauriertes detailliertes Modell der Ausstellung in der Messehalle, im Maßstab 1:25 (vgl. Abb. 28), das Aufbau und Inhalte originalgetreu wiedergibt. Anhand eines Übersichtsplans und einer Farblegende werden die Inhalte analog den Kapiteln des Katalogs zugeordnet.
Die Installation des Modulor-Raums im BHROX – wiederverwendet aus einem vergangenen und weitestgehend verlorenen Ausstellungsfundus – verkörpert und inszeniert mehrschichtige Bedeutungen und Wahrnehmungen. Ein Raum-im-Raum aus wiederverwendeten Bauteilen einbeschrieben in einem reuse-Pavillon, die maßlich relationalen Öffnungen des Modulor-Raums (vgl. Abb. 29) und die Durchblicke durch die wiederverwendeten Fassadenbauteile des bauhaus reuse, der Material-Kontrast von Holz zu Stahl und Glas sowie die Korrespondenz der verschiedenartigen modularen Elemente und ikonischen Maße aus dem Gropius’schen Dessauer Bauhaus einerseits und dem Moderne-prägenden Maßsystem Le Corbusiers andererseits vermitteln einen eindrücklichen räumlichen und haptischen Effekt und baugeschichtlichen Kontext.
Gleichzeitig beinhaltet dies ein Spiel mit Identitäten und Wertigkeiten, das dem Prinzip von «modern reuse« (nach zukunftsgeraeusche) hinterlegt ist.
Unbenommen, die Wiederholung von Ausstellungen, beispielsweise im Rahmen von Wanderausstellungen, ist eine übliche Praxis. Wobei im vorliegenden Fall das Auffinden, Bewahren und die Rekonstruktion sowie gleichsam die thematische Aufbereitung eines einzigen erhaltenen Exemplars der damaligen Ausstellungsbauten im Vordergrund stehen, das mit dem verkörperten Thema in einem herausgestellten Kontext eine weitergehende Betrachtung und räumliche wie inhaltliche Wiederverwendung findet.
Ebenso steht das Objekt für eine beispielhaft umfangreiche und tiefgehende Auseinandersetzung mit dem Werk von Le Corbusier durch die Arbeit und Ausstellung von Thilo Hilpert, das als gebauter Zeitzeuge und Zugang für die weitere Beschäftigung mit der Forschung und deren Ergebnissen heute eintritt.
BHROX | zkg, Robert K. Huber, Aug 2023





